Częstochowa, Parkitka

Mieszkanie na sprzedaż

Opis nieruchomości

APARTEMENTY TWORZONE Z PASJĄ


BEZ PROWIZJI OD KUPUJĄCEGO i BEZ PODATKU PCC


PROMOCJA WIOSENNA 8700 zł/m2, komórka lokatorska GRATIS

 
Zapraszamy do zapoznania się z ofertą wyjątkowej inwestycji deweloperskiej.

PARKITKA - ŁÓDZKA 166 to nowy adres na mieszkaniowej mapie Częstochowy. 

Co wyróżnia tą inwestycję?
  • wysokość mieszkań to aż 2,88 m
  • duże przeszklenia - wszystkie okna do samej podłogi
  • maksymalna funkcjonalność każdego mieszkania - po to aby każdy metr kwadratowy był wykorzystany a nie tylko sprzedany
  • tylko 26 mieszkań w jednym apartamentowcu
Dostępne apartamenty mają powierzchnię od 35 do 68 m2. Każde z mieszkań ma balkon a mieszkania na parterze ogródek. Miejsca w garażu podziemnym i komórki lokatorskie są dodatkowo płatne.

Ogrzewanie - miejskie.

Termin oddania do użytkowania - I kwartał 2028

Zapraszam do kontaktu w celu zapoznania się ze szczegółami oferty.

Nota prawna

Opis oferty zawarty na stronie internetowej sporządzany jest na podstawie oględzin nieruchomości oraz informacji uzyskanych od właściciela, może podlegać aktualizacji i nie stanowi oferty określonej w art. 66 i następnych K.C.

Szczegóły oferty

Symbol oferty CEN-MS-8101
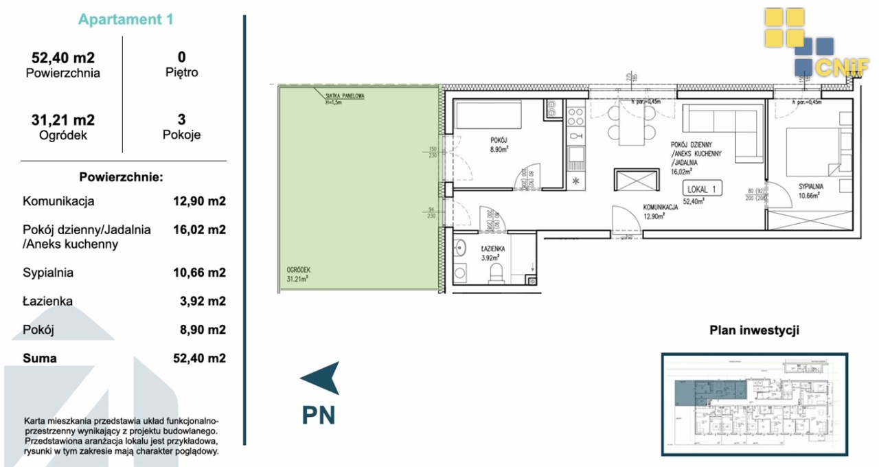
Powierzchnia 52,40 m²
Powierzchnia użytkowa 52,40 m²
Liczba pokoi 3
Piętro parter
Rodzaj budynku apartamentowiec
Standard
Liczba pięter w budynku 3
Stan lokalu Do wykończenia
Balkon taras
Ogrzewanie miejskie
Winda tak

Lokalizacja

Kalkulator kredytowy

PLN
%
Wysokość raty

Kalkulator kosztów

PLN
PLN
PLN
PLN
PLN
PLN
%
PLN
Podatek od czynności cywilno-prawnych
Taksa notarialna (opłata notarialna)
VAT od taksy notarialnej (opłaty notarialnej)
Wniosek do WKW
VAT od wniosku do WKW
Prowizja agencji nieruchomości
VAT od prowizji agencji nieruchomości
Wypisy aktu notarialnego - około
RAZEM (cena + opłaty)

Podobne oferty

mieszkanie na sprzedaż - Częstochowa, Śródmieście

mieszkanie na sprzedaż

Częstochowa, Śródmieście
2 pokoje 50,00 m2 7 580,00 zł/m2
mieszkanie na sprzedaż - Częstochowa, Parkitka

mieszkanie na sprzedaż

Częstochowa, Parkitka
3 pokoje 48,94 m2 9 399,26 zł/m2
mieszkanie na sprzedaż - Częstochowa, Północ

mieszkanie na sprzedaż

Częstochowa, Północ
3 pokoje 61,00 m2 7 049,18 zł/m2
bez prowizji
mieszkanie na sprzedaż - Częstochowa, Północ

mieszkanie na sprzedaż

Częstochowa, Północ
3 pokoje 74,00 m2 7 432,43 zł/m2

Napisz do nas

Proszę wypełnić to pole
Proszę wypełnić to pole
Proszę wypełnić to pole
Proszę wypełnić to pole
Trwa wysyłanie...

Centrum Nieruchomości i Finansów - Częstochowa

Biuro

Al. NMP 29

42-200 Częstochowa

biuro@cnif.pl

Telefon: +48 507 090 517